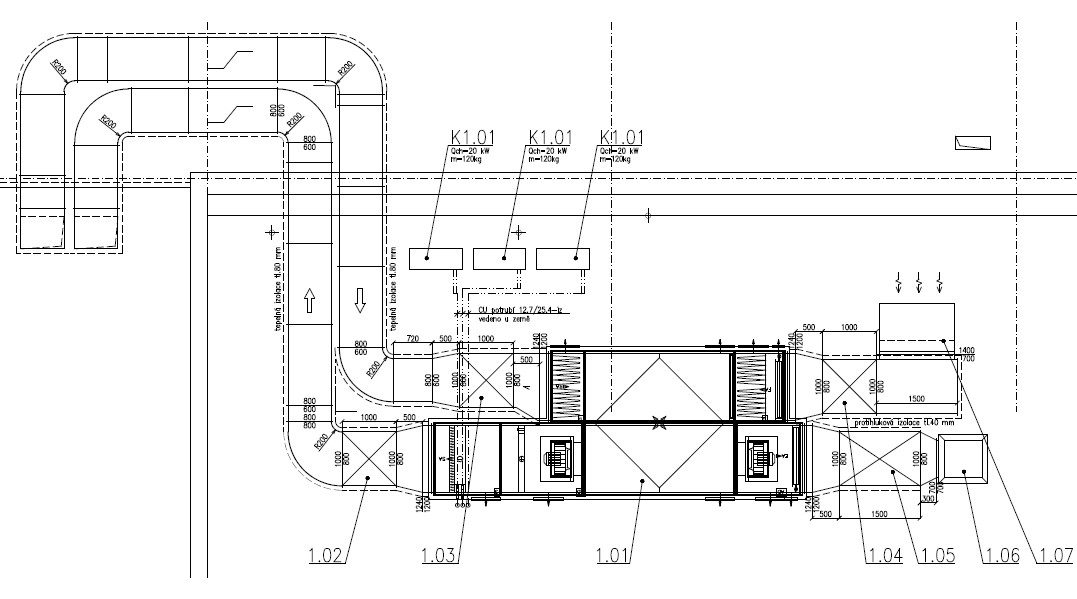
Poradenství a projekce
Pouštíme do objektů čerstvý vzduch — Postaráme se o realizaci vzduchotechniky a klimatizace od A do Z. Poradíme, navrhneme, vytvoříme projekt, provedeme montáž, revizi i proškolení a jsme k dispozici pro další servis a údržbu.
Služby
Projekce, poradenství a technické konzultace
Využíváme dlouholeté zkušenosti v oblasti projektování a technického zařízení budov, sledujeme trendy a vzděláváme se. Věnujeme se technickým konzultacím a poradenství, zajistíme pro vás preventivní, záruční a pozáruční servis a údržbu všech částí techniky. A nejen to.
Vpustíme čerstvý vzduch do:
- Bytové výstavby a rodinných domů.
- Škol, kanceláří, obchodů a obchodních center, zdravotnických a sportovních zařízení atd.
- Výrobních hal a zajistíme průmyslovou vzduchotechniku (průmyslové filtrace, technologické odsávání škodlivin, vzduchotechnika pro výbušné prostředí).
S našimi projekty také získáte autorizační razítko ČKAIT v oblasti TE01 technika prostředí staveb, vytápění a vzduchotechnika.

Realizace
U projektů nekončíme. Postavíme a namontujeme vzduchotechnické a klimatizační zařízení „na klíč“. Dodáme a namontujeme systém měření a regulace, vzduchotechniku napojíme na zdroj tepla a chladu. Následně provedeme všechny potřebné revize, zregulování systému a proškolení obsluhy.














Servis
Postaráme se o bezproblémový chod zařízení. Preventivně prohlížíme a servisujeme vzduchotechniku a klimatizace, kontrolujeme jejich technický stav, provozuschopnost, požární bezpečnost, měříme vzduchové výkony, čistíme a měníme vzduchové filtry. Vše řešíme servisní smlouvou s pravidelnou péčí nebo jednorázovými prohlídkami, servisem a opravami podle vašich přání.


Kontakt
Ing. Marek Obšivač
Projektant
+420 739 799 576
projekce@endeklima.cz
Endeklima CZ s.r.o.
IČO:
DIČ: